Nossos Serviços
Oferecemos soluções completas em elétrica, energia solar, recarga veicular, análises e laudos técnicos.
Atuamos com qualidade, segurança e conformidade às normas, atendendo residências, empresas e condomínios.
Projetos elétricos
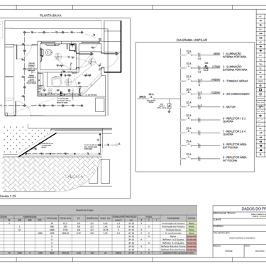
Desenvolvemos projetos elétricos residenciais, comerciais, industriais, de iluminação pública e sistemas de proteção contra descargas atmosféricas (SPDA), seguindo rigorosamente as normas NBR 5410, NBR 5419 e exigências da Energisa.
Inclui: dimensionamento de cargas, diagramas unifilares, especificação de materiais e soluções para eficiência energética.
Benefícios: segurança, conformidade legal e otimização de custos.




































Energia Solar
Oferecemos soluções completas em energia solar fotovoltaica, desde o projeto até a instalação e homologação.
Inclui: análise de viabilidade, dimensionamento, fornecimento de equipamentos, instalação e manutenção preventiva.
Atendemos: clientes finais e integradores que necessitam apenas do projeto.









Recarga Veicular
Projetamos e instalamos pontos de recarga para veículos elétricos em residências, empresas e condomínios.
Inclui: estudo de carga, instalação de tomadas e carregadores, testes e comissionamento.
Benefícios: segurança, praticidade e compatibilidade com diversos modelos de veículos.









Serviços para Condomínos
Realizamos inspeções e adequações elétricas completas para condomínios, garantindo segurança e conformidade.
Inclui: projetos e adequações de instalações, inspeções periódicas, análise de carga, verificação de quadros e sistemas, e inspeção de SPDA.
Ferramentas: câmera térmica, megômetro, terrômetro, multímetro e outros equipamentos de medição avançada.
Instalações e Execuções
Realizamos instalações elétricas completas e adequações em redes e sistemas para residências, empresas e condomínios.
Inclui: montagem e manutenção de padrões de entrada, instalação e reorganização de quadros elétricos, passagem de cabos, instalação de pontos de força e iluminação, infraestrutura elétrica e ampliações.




















Laudos Técnicos
Realizamos análises e elaboramos laudos e relatórios de SPDA e instalações elétricas, em conformidade com normas técnicas e exigências do Corpo de Bombeiros. Esses documentos compõem parte do processo para obtenção ou renovação do AVCB.
Inclui: inspeções, medições e documentação assinada por engenheiro habilitado, assegurando segurança e atendimento aos requisitos legais.
© Copyright 2025 Delta G Engenharia - Todos os direitos reservados - CNPJ: 53.089.474/0001-18
